Villa 1147, Rodrigues //
Laguna

Há algo de diferente, de único, quase inexplicável, no encontro entre a plenitude infinita do mar e a vitalidade, o movimento e a inconstância da urbanidade.

 

Como diriam os franceses, as cidades litorâneas têm o seu je ne sais quoi.

 

Assim, podemos afirmar que, antes mesmo da arquitetura em si, é no próprio contexto urbano do terreno que nasce a singularidade do projeto para o edifício residencial na Praia do Mar Grosso, em Laguna.

 

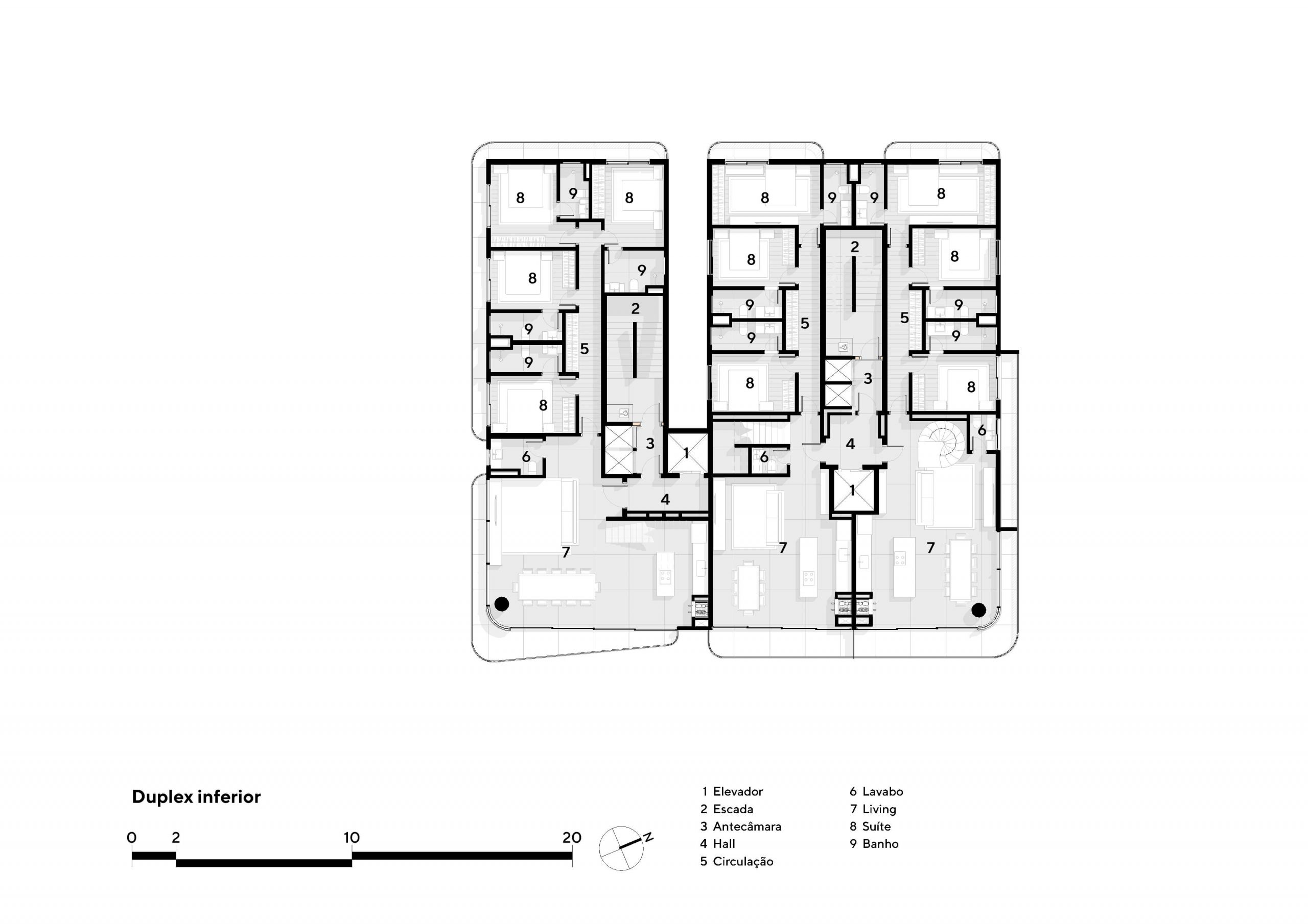
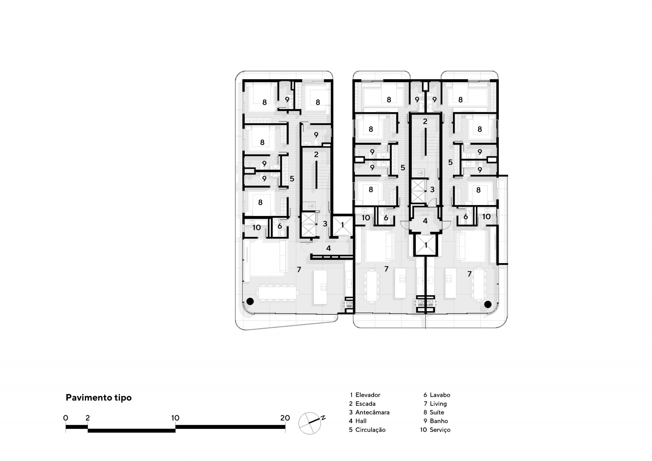
A paisagem da orla e da praça do Villa – que dá nome ao edifício – condiciona e conduz a arquitetura. Logo, é a vista do mar que orienta a implantação dos apartamentos. Com as áreas sociais voltadas para a praça e para o horizonte, cria-se uma solução pouco convencional para a organização do pavimento tipo, o que tornou necessária a utilização de dois núcleos rígidos para o acesso às unidades.

 

Em um cenário urbano plural e complexo, a torre dialoga com o entorno por meio da ausência de cor e da simplicidade formal.  Composta por um único prisma retangular, seccionado por varandas e sacadas, cujas arestas definem a forma do edifício.

 

Buscamos, com a proposta volumétrica, uma arquitetura mais leve e minimalista, expressa não apenas na forma, mas também na pureza alva da torre.

 

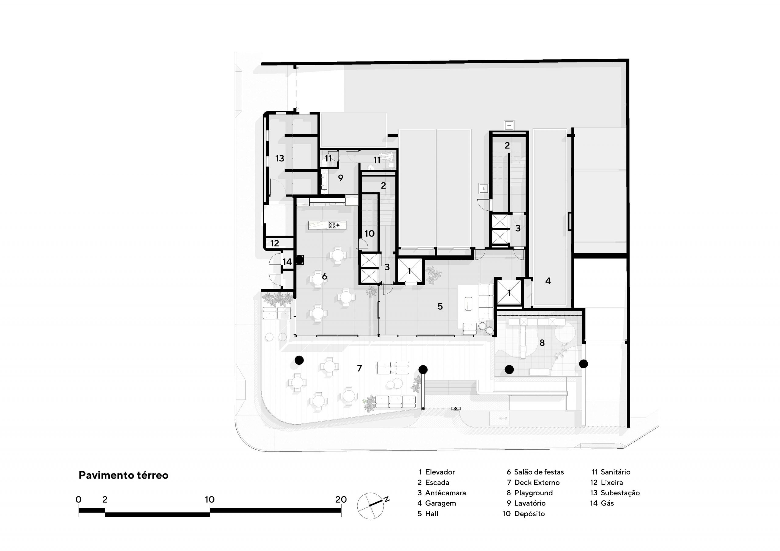
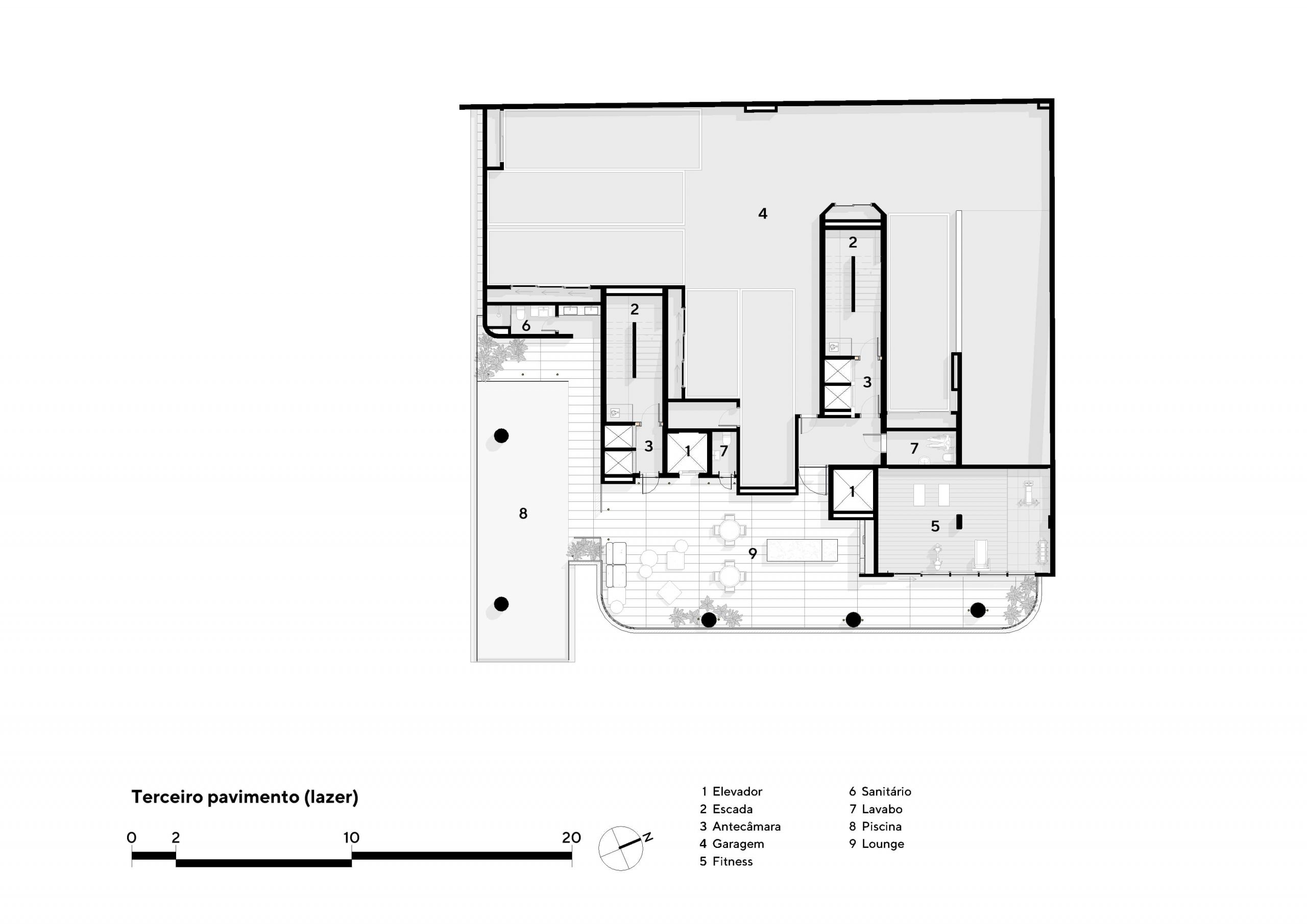
O embasamento, por sua vez, apresenta uma sobreposição de elementos, com destaque para a piscina em balanço sobre os espaços de lazer do térreo. A materialidade dos pavimentos inferiores contrasta com a torre, marcada pelo predomínio da madeira – presente tanto no forro quanto nas paredes – como forma de humanizar e incorporar a escala humana ao projeto.

Clique aqui e conheça o projeto pelo PASSEIO VIRTUAL


Ficha técnica
• Tipo: Residencial Multifamiliar
• Cliente: Construtora Rodrigues
• Local: Laguna/SC, Brasil
• Equipe: Karen Vitória Nunes de Oliveira, Laura Botega Possamai, Luiz César Ferreira dos Santos Júnior,

Marcos Silva Oshiro,  Matheus Limas de Oliveira, Rodrigo de Miranda Viana e Samuel Soares Sandrini.
• Ano: 2023
• Área: 7.396,20 m²
• Status: Em construção

Contato